Charmante rijwoning met koer in Zottegem
Léon Lefèvrestraat 12, 9620 Zottegem
Ref: TK/25/266
3DTour
€ 199.000
| 1 badkamer | |
| 3 slaapkamers | |
| EPC: 582 kWh/m2/jaar | |
| 1930 |
Ligging
In de Léon Lefèvrestraat bevindt zich deze sfeervolle rijwoning, ideaal gelegen op wandelafstand van het levendige centrum, het station en het ziekenhuis. Dankzij de nabijgelegen E40 is er tevens een uitstekende bereikbaarheid naar zowel Gent als Brussel.
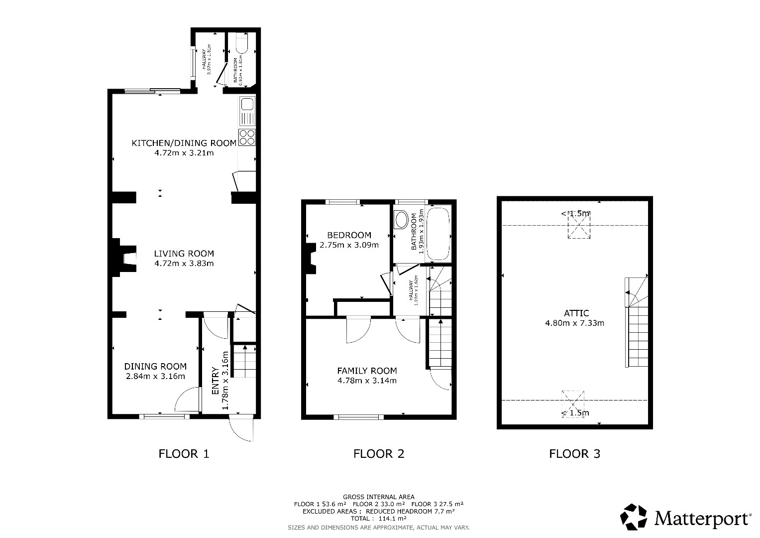
Indeling
Via de afgesloten inkomhal betreedt u meteen de grote leefruimte. Er is een volledig vernieuwde open keuken, uitgerust met moderne voorzieningen en voldoende ruimte voor een ontbijthoek of eetplaats. Naast de keuken is er een praktische wasruimte aanwezig en een apart toilet, wat bijdraagt aan het gebruiksgemak van de woning. De voorplaats kan perfect dienst doen als bureau, speelkamer of gezellige zithoek. Een groot schuifraam aan de achterkant zorgt voor veel lichtinval en leidt naar de gezellige koer. Er is ook een handige buitenberging aanwezig. Op de eerste verdieping bevinden zich twee slaapkamers en een badkamer met ligbad, alles zorgvuldig afgewerkt in een warme en huiselijke stijl. Verder is er via een vaste trap ook toegang tot de zolderruimte, welke nog te renoveren is en een uitstekende mogelijkheid biedt als derde slaapkamer of hobby- en werkruimte. Onder de woning bevindt zich bovendien een droge kelder, ideaal voor opslag of wijnliefhebbers.
Troeven
* Centrale ligging
* Vernieuwde open keuken
* Veel lichtinval
* Mogelijkheid tot extra slaapkamer(s)
Bent u op zoek naar een instapklare woning die u op termijn verder kan optimaliseren? Dan is dit een mooie kans op een uitstekende locatie in Zottegem. Contacteer snel Tim voor een bezoek.
📞 0487/40.21.28
✉️ tim@gentill.be
In de Léon Lefèvrestraat bevindt zich deze sfeervolle rijwoning, ideaal gelegen op wandelafstand van het levendige centrum, het station en het ziekenhuis. Dankzij de nabijgelegen E40 is er tevens een uitstekende bereikbaarheid naar zowel Gent als Brussel.
Indeling
Via de afgesloten inkomhal betreedt u meteen de grote leefruimte. Er is een volledig vernieuwde open keuken, uitgerust met moderne voorzieningen en voldoende ruimte voor een ontbijthoek of eetplaats. Naast de keuken is er een praktische wasruimte aanwezig en een apart toilet, wat bijdraagt aan het gebruiksgemak van de woning. De voorplaats kan perfect dienst doen als bureau, speelkamer of gezellige zithoek. Een groot schuifraam aan de achterkant zorgt voor veel lichtinval en leidt naar de gezellige koer. Er is ook een handige buitenberging aanwezig. Op de eerste verdieping bevinden zich twee slaapkamers en een badkamer met ligbad, alles zorgvuldig afgewerkt in een warme en huiselijke stijl. Verder is er via een vaste trap ook toegang tot de zolderruimte, welke nog te renoveren is en een uitstekende mogelijkheid biedt als derde slaapkamer of hobby- en werkruimte. Onder de woning bevindt zich bovendien een droge kelder, ideaal voor opslag of wijnliefhebbers.
Troeven
* Centrale ligging
* Vernieuwde open keuken
* Veel lichtinval
* Mogelijkheid tot extra slaapkamer(s)
Bent u op zoek naar een instapklare woning die u op termijn verder kan optimaliseren? Dan is dit een mooie kans op een uitstekende locatie in Zottegem. Contacteer snel Tim voor een bezoek.
📞 0487/40.21.28
✉️ tim@gentill.be
Kenmerken
| Bouwjaar | 1930 |
| Beschikbaar | Bij akte |
| Oriëntatie tuin | Noord-West |
| Elektriciteitscertificaat | Ja, Niet conform |
Adres
| Straat | Léon Lefèvrestraat |
| Stad | 9620 Zottegem |
Omgeving
| Bushalte | op minder dan 500 m |
| Ontspanning | op minder dan 500 m |
| Restaurant | op minder dan 500 m |
| School | op 500 m tot 1000 m |
| Treinstation | op 500 m tot 1000 m |
| Winkel | op minder dan 500 m |
Bebouwing
| Totale opp. grond | 90 m² |
| Bewoonbare opp. | 87 m² |
| Breedte huis | 5 m |
| Breedte grond | 5 m |
| Diepte grond | 18 m |
Comfort
| Aardgas | Ja |
| Internet | Ja |
| Riolering | Ja |
| Rolluiken | Ja |
| Stadswater | Ja |
| Prijs | € 199.000 |
| EPC | 582 kWh/m2/jaar |
| EPC ref. | 20250913-0003685304-RES-1 |
| Label |
|
| CO²-emissie | 8147 kg/m2/jaar |
Woonkamer
| 42 m²
Keuken
| 15 m²
Badkamer
3x
Slaapkamer
WC
Terras
| 12 m²
Kelder
| 7 m²
Tuin
| 12 m²